Listed by Ryan Foss of RISE REC
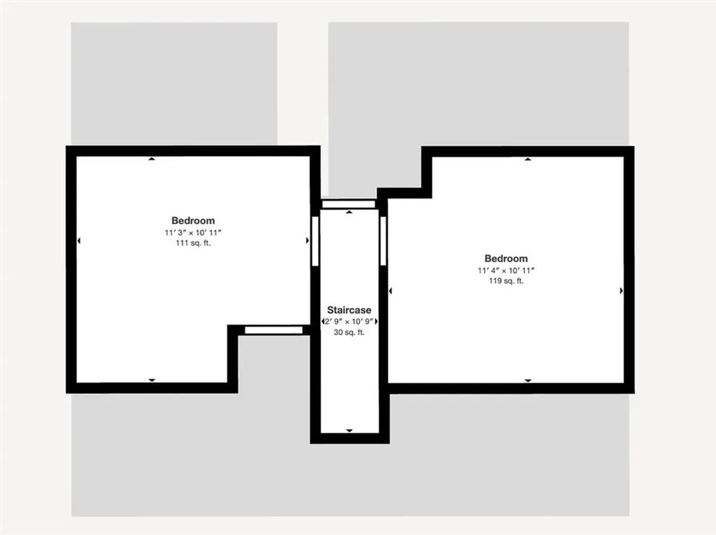
Welcome to 83 Symonds Avenue, a charming Cape-Cod style home tucked into the Conimicut neighborhood of Warwick. Built in 1930, this 3-bedroom, 1-bath residence offers approximately 875 square feet of living space on a level lot of about 4,791 square feet. Featuring hardwood floors, a warm and inviting layout, and the convenience of the main-floor primary bedroom, this property blends classic charm with everyday comfort. The home is heated by natural gas with forced air, and includes ductless cooling (and heating). You'll enjoy peaceful outdoor living in the fully fenced backyard and the covered porch, perfect for relaxing or entertaining. There's convenient drive-up parking for up to three vehicles. A full basement with both interior and exterior entry adds storage potential and flexibility. With close proximity to the water, nearby schools, shopping and dining, and access to highways and public transportation, this address makes it easy to embrace coastal-Rhode Island living with suburban convenience. Situated in the Warwick School District, this home offers a rare mix of accessibility, character, and location. Whether you're seeking a starter home or looking to downsize in a friendly neighborhood, 83 Symonds Avenue delivers.

Listing Tools

Property Details of 83 Symonds Avenue, Conimicut

Property Details

Interior Features

Exterior Features

Community

Map Location

 IDX information is provided exclusively for consumers’ personal, non-commercial use and may not be used for any purpose other than to identify prospective properties consumers may be interested in purchasing. Information is deemed reliable but is not guaranteed.  ©  2025 State-Wide Multiple Listing Service. All rights reserved.

Hi there! How can we help you?

Contact us using the form below or give us a call.

Send Us A Message:

I agree to receive marketing and customer service calls and text messages from Costello Realty. To opt out, you can reply 'stop' at any time or click the unsubscribe link in the emails. Consent is not a condition of purchase. Msg/data rates may apply. Msg frequency varies. Privacy Policy.

Do not fill in this field:

This site is protected by reCAPTCHA and the Google Privacy Policy and Terms of Service apply.

Hi there! How can we help you?

Contact us using the form below or give us a call.

Send Us A Message:

Do not fill in this field:

This site is protected by reCAPTCHA and the Google Privacy Policy and Terms of Service apply.

Hi there! How can we help you?

Contact us using the form below or give us a call.

Send Us A Message:

Do not fill in this field:

This site is protected by reCAPTCHA and the Google Privacy Policy and Terms of Service apply.

Do not fill in this field:

This site is protected by reCAPTCHA and the Google Privacy Policy and Terms of Service apply.

Do not fill in this field:

This site is protected by reCAPTCHA and the Google Privacy Policy and Terms of Service apply.

Do not fill in this field:

This site is protected by reCAPTCHA and the Google Privacy Policy and Terms of Service apply.

$

Do not fill in this field:

This site is protected by reCAPTCHA and the Google Privacy Policy and Terms of Service apply.