Listed by Michael Russo of RI Real Estate Services
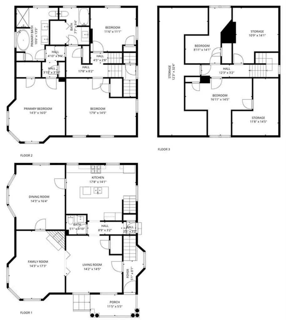
This charming Colonial with Victorian flair is beautifully renovated to blend historic character with modern amenities. Set on a quiet stonewalled corner lot walking distance to the ocean this charming home is ready for immediate occupancy. You'll find authentic architectural details throughout such as hardwood floors and intricate moldings, all alongside updated features for present-day living. The first level offers your chic eat-in chef's kitchen with high end appliances including an oversized gas range with vented hood, a flexible floorplan with multiple different layout options, fireplaced living or dining, powder room & direct patio access. Your double staircase offers second floor access from the entry foyer or directly from your stylish kitchen. The amazing primary suite features a spa-like custom bath with walk-in shower, free standing soaking tub & double vanity. Your 2nd & 3rd bedrooms, second custom tiled full bath and laundry closet complete the bedroom level. The 3rd floor is perfect for a variety of uses including an ideal home office, play space, fitness, additional bedrooms & more. Your unfinished walkout lower level is excellent storage space. Outside you'll find your 2 car detached garage with walk-in storage underneath, ample greenspace with irrigation, stone patio, new walkways & more. With all new: heating & cooling, electrical, plumbing, roofs & low maintenance siding you'll enjoy many years of low expense & care free living. Truly a rare find!

Listing Tools

Property Details of 612 Warwick Neck Avenue, Warwick Neck

Property Details

Interior Features

Exterior Features

Community

Map Location

 IDX information is provided exclusively for consumers’ personal, non-commercial use and may not be used for any purpose other than to identify prospective properties consumers may be interested in purchasing. Information is deemed reliable but is not guaranteed.  ©  2025 State-Wide Multiple Listing Service. All rights reserved.

Hi there! How can we help you?

Contact us using the form below or give us a call.

Send Us A Message:

I agree to receive marketing and customer service calls and text messages from Costello Realty. To opt out, you can reply 'stop' at any time or click the unsubscribe link in the emails. Consent is not a condition of purchase. Msg/data rates may apply. Msg frequency varies. Privacy Policy.

Do not fill in this field:

This site is protected by reCAPTCHA and the Google Privacy Policy and Terms of Service apply.

Hi there! How can we help you?

Contact us using the form below or give us a call.

Send Us A Message:

Do not fill in this field:

This site is protected by reCAPTCHA and the Google Privacy Policy and Terms of Service apply.

Hi there! How can we help you?

Contact us using the form below or give us a call.

Send Us A Message:

Do not fill in this field:

This site is protected by reCAPTCHA and the Google Privacy Policy and Terms of Service apply.

Do not fill in this field:

This site is protected by reCAPTCHA and the Google Privacy Policy and Terms of Service apply.

Do not fill in this field:

This site is protected by reCAPTCHA and the Google Privacy Policy and Terms of Service apply.

Do not fill in this field:

This site is protected by reCAPTCHA and the Google Privacy Policy and Terms of Service apply.

$

Do not fill in this field:

This site is protected by reCAPTCHA and the Google Privacy Policy and Terms of Service apply.