Listed by Warren West of RISE REC
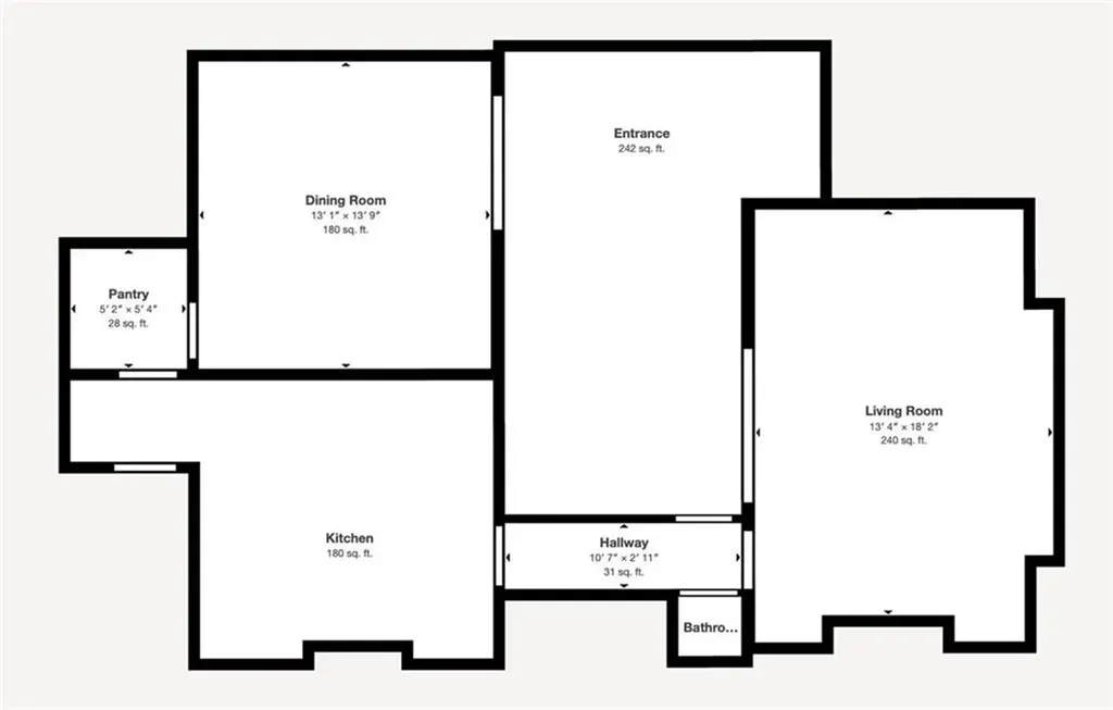
Offering nearly 2,000 square feet of finished space, this beautifully maintained condex (condominium-converted duplex) in Woonsocket's North End blends classic charm and craftsmanship throughout. The first floor hosts a welcoming layout with a living room, formal dining room, kitchen, butler's pantry, and half-bath, and formal entryway. While the living room features a classic fireplace with mantle and built-ins, the modern kitchen features a breakfast nook and butcher block counters. Gorgeous hardwood floors flow throughout, adding warmth and character to every room. Upstairs, are four generously sized bedrooms and a full bathroom, providing plenty of space for family or guests. The walk-up attic offers plenty of space for storage or an exciting potential to add finished space, or even a bathroom, expanding your living options even further. Major big-ticket updates include a new roof, boiler, and water heater; giving peace of mind for years to come. Off street parking included.

Listing Tools

Property Details of 341 Blackstone Street, North End

Property Details

Interior Features

Exterior Features

Community

Map Location

 IDX information is provided exclusively for consumers’ personal, non-commercial use and may not be used for any purpose other than to identify prospective properties consumers may be interested in purchasing. Information is deemed reliable but is not guaranteed.  ©  2025 State-Wide Multiple Listing Service. All rights reserved.

Hi there! How can we help you?

Contact us using the form below or give us a call.

Send Us A Message:

I agree to receive marketing and customer service calls and text messages from Costello Realty. To opt out, you can reply 'stop' at any time or click the unsubscribe link in the emails. Consent is not a condition of purchase. Msg/data rates may apply. Msg frequency varies. Privacy Policy.

Do not fill in this field:

This site is protected by reCAPTCHA and the Google Privacy Policy and Terms of Service apply.

Hi there! How can we help you?

Contact us using the form below or give us a call.

Send Us A Message:

Do not fill in this field:

This site is protected by reCAPTCHA and the Google Privacy Policy and Terms of Service apply.

Hi there! How can we help you?

Contact us using the form below or give us a call.

Send Us A Message:

Do not fill in this field:

This site is protected by reCAPTCHA and the Google Privacy Policy and Terms of Service apply.

Do not fill in this field:

This site is protected by reCAPTCHA and the Google Privacy Policy and Terms of Service apply.

Do not fill in this field:

This site is protected by reCAPTCHA and the Google Privacy Policy and Terms of Service apply.

Do not fill in this field:

This site is protected by reCAPTCHA and the Google Privacy Policy and Terms of Service apply.

$

Do not fill in this field:

This site is protected by reCAPTCHA and the Google Privacy Policy and Terms of Service apply.