Listed by Lorraine Bandoni of CrossRoads Real Estate Group (401-219-0682)
PLEASE SUBMIT ALL FINAL OFFERS BY 2 PM SUNDAY 10/12 NEW TO THE MARKET! GORGEOUS well-loved home in a quiet area of Warwick within walking distance to the bay. This lovely home features a BRAND NEW roof, NEW insulated windows, a NEW driveway, NEW walkway, an updated bath, and much desired CENTRAL AIR! The eat in kitchen was recently updated to include new solid surface counters with a breakfast bar, new hardware, and new appliances. There are amazing gleaming hardwoods throughout. The exterior of the home features a simply beautiful landscaped yard, with a low maintenance composite deck to sit back and enjoy your private oasis! The yard is spectacular now but just wait until spring when all the perennials and flowering trees start to bloom! Set back among the trees is a quaint screened in gazebo that has power going to it. Just one more way to sit back and enjoy the splendor. The backyard also includes a shed for storage. This home should have no problem meeting FHA or VA guidelines. Both the interior and exterior of the home were recently painted. Close to restaurants, shopping, walking/bike paths, recreational facilities, and marinas. This location is ideal! This home absolutely needs to be seen to be fully appreciated! Honestly, just drop your bags and enjoy!! Suject to seller finding suitable housing

Listing Tools

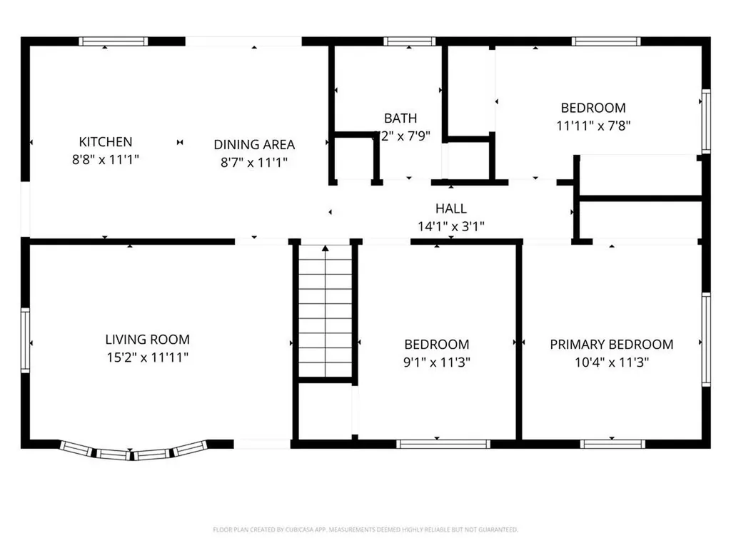
Property Details of 73 Custer Street, Brushneck Cove

Property Details

Interior Features

Exterior Features

Community

Map Location

 IDX information is provided exclusively for consumers’ personal, non-commercial use and may not be used for any purpose other than to identify prospective properties consumers may be interested in purchasing. Information is deemed reliable but is not guaranteed.  ©  2025 State-Wide Multiple Listing Service. All rights reserved.

Hi there! How can we help you?

Contact us using the form below or give us a call.

Send Us A Message:

I agree to receive marketing and customer service calls and text messages from Costello Realty. To opt out, you can reply 'stop' at any time or click the unsubscribe link in the emails. Consent is not a condition of purchase. Msg/data rates may apply. Msg frequency varies. Privacy Policy.

Do not fill in this field:

This site is protected by reCAPTCHA and the Google Privacy Policy and Terms of Service apply.

Hi there! How can we help you?

Contact us using the form below or give us a call.

Send Us A Message:

Do not fill in this field:

This site is protected by reCAPTCHA and the Google Privacy Policy and Terms of Service apply.

Hi there! How can we help you?

Contact us using the form below or give us a call.

Send Us A Message:

Do not fill in this field:

This site is protected by reCAPTCHA and the Google Privacy Policy and Terms of Service apply.

Do not fill in this field:

This site is protected by reCAPTCHA and the Google Privacy Policy and Terms of Service apply.

Do not fill in this field:

This site is protected by reCAPTCHA and the Google Privacy Policy and Terms of Service apply.

Do not fill in this field:

This site is protected by reCAPTCHA and the Google Privacy Policy and Terms of Service apply.

$

Do not fill in this field:

This site is protected by reCAPTCHA and the Google Privacy Policy and Terms of Service apply.