Listed by Dave Boisvert of Keller Williams Leading Edge

Listing Sold by Gateway Realty
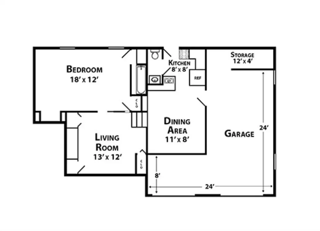
Located directly on the parade route and in the Blue-Ribbon Community school district, this wonderful home has been lovingly cared for. This spacious split level home features maintenance free vinyl siding and has nearly 3,500 square feet of living space on .79 acres with a large backyard shed for storage. The first floor features a mudroom with laundry, large eat-in kitchen with newer cabinets and hardware, gleaming countertops and a beautiful backsplash. The second floor features a gorgeous full bath and 3 large bedrooms. There is a large living room with a wood burning fireplace. The bedrooms and living room also have the original hardwoods under the carpeting. Up a few more steps, you find another oversized room that could be turned into a family room, office, another bedroom or a playroom. This home has ample closets/storage space throughout as well! Please note this home has a one car garage after the addition of the in-law which has its own private entrance. Use this space as a legal in-law or expand the living area. This is an estate sale and is being sold as-is but with just a little tlc, cosmetic updates, rugs and a little paint it will be shining again. All around, this is a fantastic opportunity here in the heart of Cumberland.

Listing Tools

Property Details of 711 Nate Whipple Highway

Property Details

Interior Features

Exterior Features

Community

Map Location

 IDX information is provided exclusively for consumers’ personal, non-commercial use and may not be used for any purpose other than to identify prospective properties consumers may be interested in purchasing. Information is deemed reliable but is not guaranteed.  ©  2025 State-Wide Multiple Listing Service. All rights reserved.

Hi there! How can we help you?

Contact us using the form below or give us a call.

Send Us A Message:

I agree to receive marketing and customer service calls and text messages from Costello Realty. To opt out, you can reply 'stop' at any time or click the unsubscribe link in the emails. Consent is not a condition of purchase. Msg/data rates may apply. Msg frequency varies. Privacy Policy.

Do not fill in this field:

This site is protected by reCAPTCHA and the Google Privacy Policy and Terms of Service apply.

Hi there! How can we help you?

Contact us using the form below or give us a call.

Send Us A Message:

Do not fill in this field:

This site is protected by reCAPTCHA and the Google Privacy Policy and Terms of Service apply.

Hi there! How can we help you?

Contact us using the form below or give us a call.

Send Us A Message:

Do not fill in this field:

This site is protected by reCAPTCHA and the Google Privacy Policy and Terms of Service apply.

Do not fill in this field:

This site is protected by reCAPTCHA and the Google Privacy Policy and Terms of Service apply.

Do not fill in this field:

This site is protected by reCAPTCHA and the Google Privacy Policy and Terms of Service apply.

Do not fill in this field:

This site is protected by reCAPTCHA and the Google Privacy Policy and Terms of Service apply.

$

Do not fill in this field:

This site is protected by reCAPTCHA and the Google Privacy Policy and Terms of Service apply.